Großzügige Top-Möblierte 3,5 Zimmer EG-Wohnung mit Terrasse und Stellplatz (befristet)
Objektart
Adresse
Objektdaten
Informationen
Ausstattung
Details
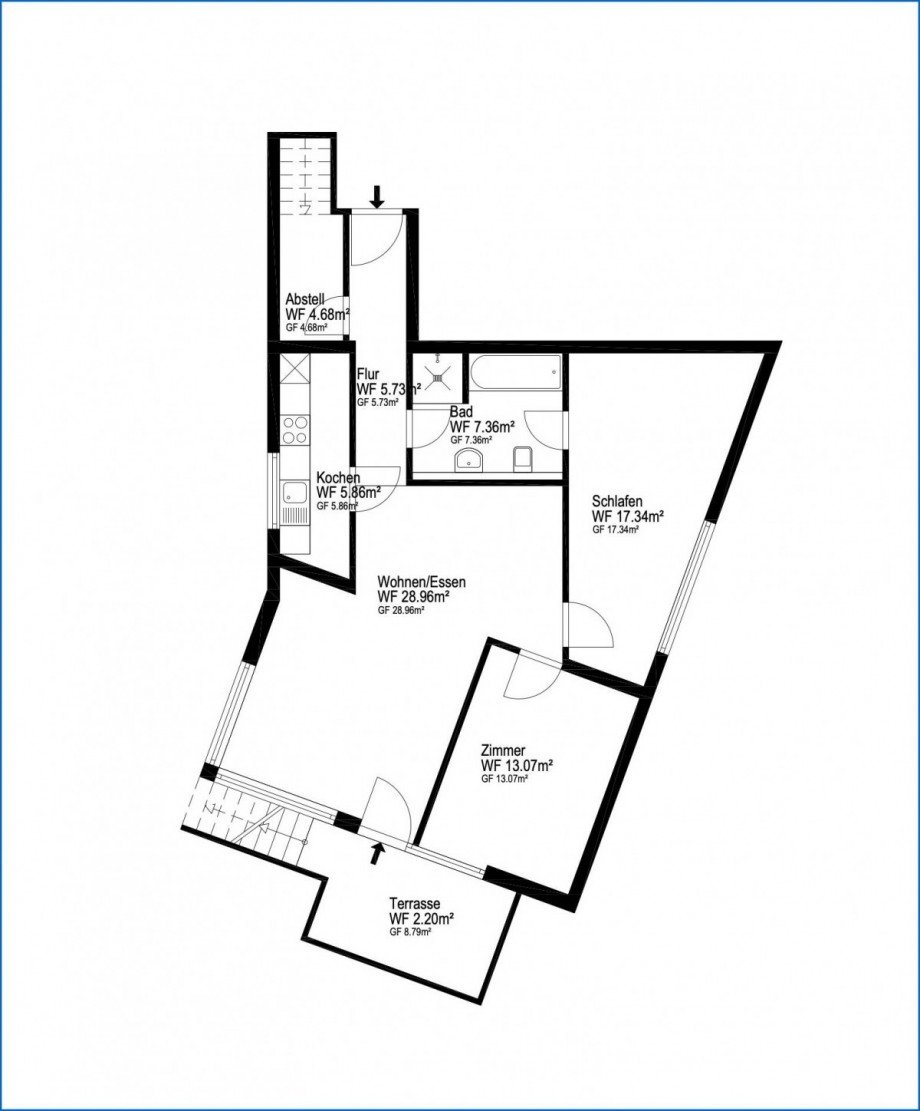
Willkommen in Ihrem neuen Zuhause in Radolfzell am Bodensee! Diese charmante EG--Sout. Wohnung in Böhringen bietet Ihnen eine Wohnfläche von knapp 80 m² und überzeugt durch eine optimale Raumaufteilung mit 3,5 Zimmern.
Tauchen Sie ein in den Komfort einer modernen Einbauküche, die gemeinsam mit der gemütlichen Terrasse den Mittelpunkt des täglichen Lebens bildet.
Hier genießen Sie erholsame Stunden im Freien.
Entdecken Sie die perfekte Gelegenheit, eine Immobilie in der Nähe vom Bodensee zu erwerben. Profitieren Sie hier von der Kombination aus guter Lage und der Nähe zu den Annehmlichkeiten des malerischen Bodensees.
Mit optimaler Anbindung und einer gewachsenen Nachbarschaft mit guter Infrastruktur ist diese Wohnung ein idealer Kauf.
Die Wohnung wird zunächst für einen Zeitraum von 6 Monaten vermietet.
Eine Verlängerung um 3 Monate ist jeweils nach Absprache möglich.
Die Wohnung wird zunächst für einen Zeitraum von 6 Monaten vermietet.
Eine Verlängerung um 3 Monate ist jeweils nach Absprache möglich.
Die Wohnung wird voll möbliert Vermietet.
Die Wohnung wurde vollständig saniert im Jahr 2021, z.B.:
- Fußbodenheizung
- Decken, Spots, Türen & Zargen, Böden, Putz,
- Bad komplett neu mit begehbarer Dusche usw.
- Fenster als Kunststoffenster
- neue, moderne Einbauküche mit Geräten
- Abstellraum / WM in der Wohnung vorhanden
- großzügiges Wohn-Esszimmer
- gemütliche Terrasse aussen
- PKW Stellplatz
und vieles mehr!
Es erwartet sie eine tolle, moderne Wohnung mit Ambiente und Flair!
Optimale, familienfreundliche und ruhige Lage in Böhringen - alle wichtigen Dinge befinden sich in der Nähe, ebenso See, Bahnhof, Kindergarten usw.
Radolfzell liegt am nordwestlichen Ufer des Bodensees, am Untersee (Zeller See und Gnadensee), an der alten Straße Konstanz-Singen-Engen, landschaftlich eingebettet zwischen Bodensee, Höri, Hegau und Bodanrück. Die Stadt ist ein Kurort (Mettnaukur/Mettnau).
Verkehrsverbindungen:
Radolfzell liegt an der Bundesstraße B 33 (Autobahnauffahrt) und B 34 mit Anschluss an die Bundesautobahn Singen-Stuttgart. Die Bahnstrecken Offenburg, Konstanz und Basel, Lindau führen durch Radolfzell.
Die Flughäfen Friedrichshafen, Zürich und Stuttgart sind ca. 58 km , 80 km bzw. 150 km entfernt. ÖPNV erfolgt durch den Stadtbus sowie durch gute Nahverkehrsverbindungen mit der Bahn zwischen Radolfzell, Konstanz, Singen und Stockach.
Bodenseeschifffahrtsverbindung ist vorhanden. zwischen Radolfzell, Konstanz, Singen und Stockach.
Bodenseeschifffahrtsverbindung ist vorhanden.
Im ALLEINAUFTRAG der ReWa Immoblien GmbH!
Die ReWa Immobilien GmbH ist Mitglied im IVD (Immobilien Verband Deutschland) und Ihr IVD-Markt-Experte in Radolfzell, Konstanz, Singen, Überlingen, Stockach und Umgebung. Alle Informationen beruhen auf Angaben des Verkäufers/Vermieters. Für die Richtigkeit werden keine Gewähr und Haftung übernommen. Bitte nennen Sie uns bei Anfragen Ihre vollständigen Kontaktdaten mit Adresse und Telefonnummer, da wir vom Eigentümer beauftragt sind, keine Informationen anonym zu versenden.
Energieausweis (Verbrauchsausweis)
64 kWh / (m²*a) Energieverbrauchskennwert
64 kWh / (m²*a) Energieverbrauchskennwert
64 kWh / (m²*a) Energieverbrauchskennwert
Weitere Informationen
| Wesentlicher Energieträger | Erdgas leicht |
| Energieausweis gültig bis | 2029-02-20 |
| Energieausweis Jahrgang | ab dem 1.5.2014 |
| Energieausweis Werteklasse | B |
| Energieausweis Baujahr | 1999 |
| Energieausweis Gebäudeart | Wohngebäude |
| Heizung | Zentralheizung |
| Befeuerung | Gas |

