Nenzingen: Großz., attrakt. Einfamilienhaus m. groß. Garten (1480 qm), inkl. separatem Baugrundstück
Objektart
Adresse
Objektdaten
Informationen
Ausstattung
Details
Entdecken Sie dieses charmante Einfamilienhaus in Orsingen-Nenzingen, das sich perfekt für Familien eignet, die Wert auf Raum und Komfort legen. Mit einer Wohnfläche von 210 m² bietet dieses sehr gepflegte Objekt großzügige Platzverhältnisse auf sieben Zimmern.
Zusätzlich stehen Ihnen 80 m² Nutzfläche zur Verfügung.
Ein besonderes Highlight ist die einladende Terrasse, die zum Verweilen im Freien einlädt.
Die moderne Einbauküche ist bereits vorhanden und erleichtert den Einzug.
Zudem besteht die Möglichkeit, ein zusätzliches Baugrundstück zur Gestaltung nach Ihren persönlichen Vorstellungen zu nutzen-hervorragend bebaubar.
Diese Immobilie ist nach Vereinbarung verfügbar und verspricht ein behagliches Zuhause in einer attraktiven Lage. Nutzen Sie die Chance, dieses einzigartige Angebot zu erwerben!
Die attraktive Immobilie überzeugt durch eine hochwertige und in weiten Teilen neuwertige Ausstattung.
Im Jahr 2020 wurde das Objekt innen umfassend renoviert; in diesem Zuge wurden auch die Elektroinstallationen erneuert.
Kunststofffenster sorgen für gute Wärmedämmung und einen zeitgemäßen Wohnkomfort.
Die beiden Bäder (EG mit begehbarer Dusche) wurden ebenfalls geschmackvoll modernisiert.
Die Küche ist mit einer modernen Einbauküche ausgestattet und fügt sich funktional und mit
kurzen Wegen ein. Neuwertige Bodenbeläge unterstreichen den sehr gepflegten Gesamteindruck und bieten ein ansprechendes, modernes Ambiente.
Ein weiteres Highlight ist die vorhandene Terrasse, die den Wohnraum ins Freie erweitert.
Der Gartenbereich wurde ebenfalls aufgewertet - mit erneuerter Bepflanzung sowie Sichtschutz für
Privatsphäre.
Für komfortables Parken stehen insgesamt vier Stellplätze zur Verfügung, unter anderem in einer Doppelgarage mit neuen, elektrischen Garagentoren.
Beheizt wird die Immobilie über eine zuverlässige Öl-Zentralheizung ( Bj.2000).
Insgesamt bietet das Objekt zahlreiche Ausstattungsdetails und Modernisierungen, die ein zeitgemäßes und komfortables Wohnen ermöglichen.
Die optimale Aufteilung des Hauses eignet sich sowohl für die größere Familien, wie auch für Mehrgenerations-Wohnen ( Eltern/Kinder abgetrennt). Auch Wohnen mit Gewerbe wäre gut denkbar.
Das zusätzliche BAUGRUNDSTÜCK bietet zudem die ideale Möglichkeit
für weiteren, neuwertigen Wohnraum!
Aufteilung:
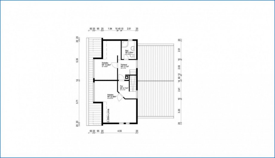
EG : 5 Zimmer, Küche, Bad m. begehb. Dusche, Diele/Garderobe, Gäste-WC, Terrasse /Garten/Teich
DG : schöne 2 Zimmer Whg. mit Badezimmer
KG : Großer Keller m. beheiztem Hobbyraum u. div. weiteren Kellerräumen
Aussen: großer Garten m. Teich, Baugrundstück, Hof/Zufahrt mit Doppelgarage und div. Stellplätzen
!Sichern sie sich hier ihre Traum-Immobilie mit Baugrundstück!
Die Immobilie befindet sich im gefragten Ort Nenzingen, einer idyllischen Gemeinde im malerischen Bodenseekreis in Deutschland. Die Lage bietet eine harmonische Verbindung aus gemütlichem Landleben und der Nähe zu städtischen Annehmlichkeiten. Die Umgebung zeichnet sich durch eine reizvolle Naturkulisse und zahlreiche Freizeitmöglichkeiten aus, darunter Wander- und Radwege.
Die Region ist bekannt für ihren hohen Erholungswert und eignet sich ideal für naturverbundene Familien sowie Pendler, die Wert auf eine entspannte Wohnatmosphäre legen.
Schulen, Einkaufsmöglichkeiten und öffentliche Verkehrsmittel sind bequem erreichbar, was den Alltag angenehm und unkompliziert gestaltet.
Nenzingen bietet eine hervorragende Anbindung ( Zug /Bus/Autobahn) an umliegende Städte und die nahegelegene Bodenseeregion, was die Lage des Hauses zusätzlich attraktiv macht. Tauchen Sie ein in eine lebendige Gemeinschaft, die Ihnen besten Wohnkomfort in naturnaher Umgebung bietet.
Im ALLEINAUFTRAG der ReWa Immobiien GmbH.
Die ReWa Immobilien GmbH ist Mitglied im IVD (Immobilien Verband Deutschland) und Ihr IVD-Markt-Experte in Radolfzell, Konstanz, Singen, Überlingen, Stockach und Umgebung. Alle Informationen beruhen auf Angaben des Verkäufers/Vermieters. Für die Richtigkeit werden keine Gewähr und Haftung übernommen. Bitte nennen Sie uns bei Anfragen Ihre vollständigen Kontaktdaten mit Adresse und Telefonnummer, da wir vom Eigentümer beauftragt sind, keine Informationen anonym zu versenden.
Ansprechpartner
Telefax: 004977328927019
Mobil: 00491715315428
anfragen@rewa-immobilien.org
Energieausweis (Bedarfsausweis)
161 kWh / (m²*a) Endenergiebedarf
161 kWh / (m²*a) Endenergiebedarf
161 kWh / (m²*a) Endenergiebedarf
Weitere Informationen
| Wesentlicher Energieträger | Öl |
| Energieausweis gültig bis | 2030-01-20 |
| Energieausweis Jahrgang | ab dem 1.5.2014 |
| Energieausweis Werteklasse | F |
| Energieausweis Baujahr | 2000 |
| Energieausweis Gebäudeart | Wohngebäude |
| Befeuerung | Öl |

