Gottmadingen / BietingenTraumhaftes, modernes Haus in grenznaher Lage!
Objektart
Adresse
Objektdaten
Informationen
Ausstattung
Details
In ruhiger und zugleich optimaler Lage von Gottmadingen/Bietingen präsentiert sich diese moderne Doppelhaushälfte aus dem Baujahr 2018 als hochwertiges Zuhause mit großzügigem Platzangebot.
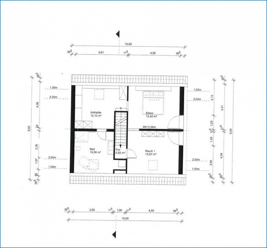
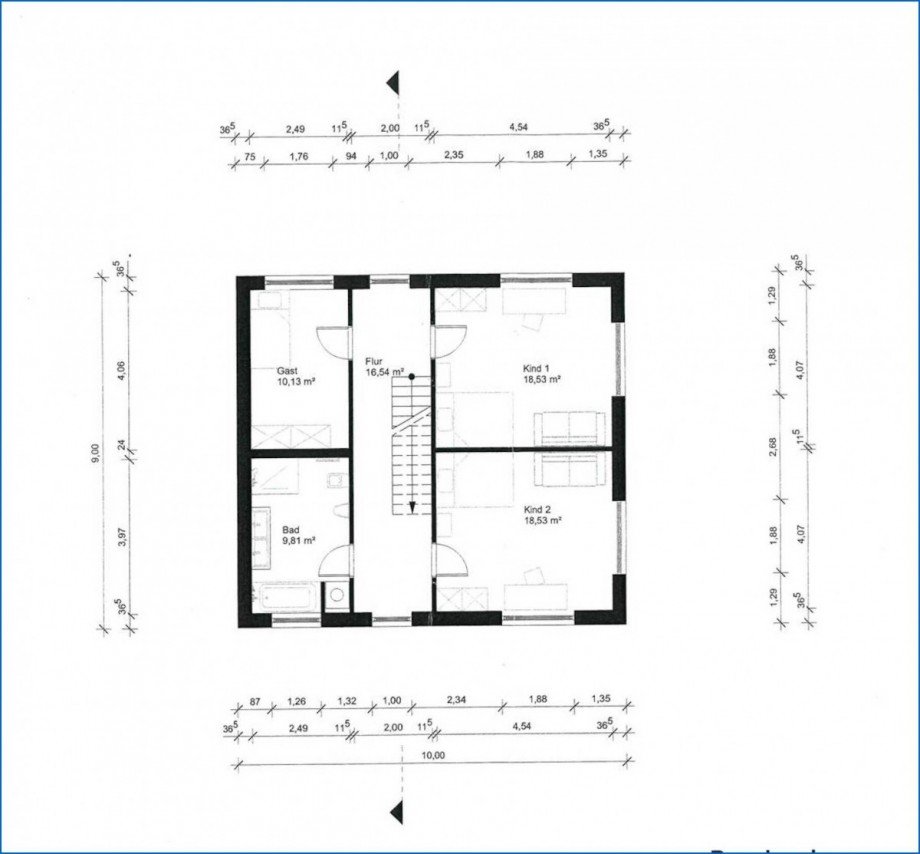
Auf ca. 200 m² Wohnfläche nach DIN verteilen sich insgesamt 8 Zimmer, die eine flexible Nutzung für Familien, Mehrgenerationenwohnen, Homeoffice und/oder Gäste ermöglichen.
Das ca. 330 m² große Grundstück bietet einen angenehmen, sehr großen Außenbereich mit Terrasse - ideal für entspannte Stunden im Freien, gesellige Abende oder den Familienalltag.
Ein Pool ergänzt das Angebot und schafft zusätzlichen Freizeitwert direkt am eigenen Zuhause.
Das Haus überzeugt durch ihre moderne, gehobene Bauweise und ein perfektes Wohnkonzept mit klaren Grundrissen, die Licht und Raum optimal zur Geltung bringen.
Die Aufteilung ermöglicht sowohl gemeinschaftliche Bereiche als auch Rückzugsmöglichkeiten, wodurch ein harmonisches Wohngefühl entsteht.
Dieses Objekt steht für modernes Wohnen auf hohen Komfort - eine attraktive Lage in Gottmadingen / Bietingen sowie ein stimmiges Gesamtpaket mit Terrasse und Pool - ideal für Käufer, die großzügiges und komfortables Wohnen schätzen.
Dieses beeindruckende Anwesen bietet eine exklusive Ausstattung, die keine Wünsche offenlässt. Genießen Sie sonnige Tage auf einer großzügigen Terrasse mit eigenem Pool. Die moderne Doppel-Garage bietet komfortablen Platz für Ihre Fahrzeuge.
Innen erwarten Sie zwei traumhafte, stilvoll gestaltete Bäder und eine optimale Fußbodenheizung, die für behagliche Wärme sorgt. Die effiziente Luft-Wasser-Wärmepumpe unterstreicht den hohen Anspruch an Nachhaltigkeit und modernen Wohnkomfort.
Hochwertige und moderne Bodenbeläge sorgen für ein attraktives Wohnambiente.
Die sehr hochwertige Einbauküche mit Natursteinplatte unterstreicht das anspruchvolle
Wohngefühl.
Das Haus verfügt über modernes Lüftungssystem:
- zentrale Be-und Entlüftungsanlage von Helios
- Smarthome-Steuerung mit Loxone (ein System, das dein ganzes Haus automatisch
und zentral steuert)
Die Immobilie ist ruhig und in optimaler, grenznaher Lage gelegen.
Bietingen liegt am Westrand des Hegau an der Grenze zur Schweiz, etwa auf halbem Weg zwischen den Städten Schaffhausen und Singen (Hohentwiel).
Das hügelige Gelände um Bietingen wird von Äckern und Wiesen geprägt, östlich und südwestlich des Dorfes zeigen sich kleinere Waldflächen. Durch Bietingen fließt die Biber auf ihrem Weg zum Rhein. Das Bibertal wird von zwei Verkehrswegen genutzt - von der Hochrheinbahn und der Bundesstraße 34 (Teil der Europastraße 54) mit dem nach Weil am Rhein/Basel zweitgrößten Straßengrenzübergang zwischen Deutschland und der Schweiz als Teil der Verbindung Stuttgart - Zürich.
Im ALLEINAUFTRAG der ReWa Immobilien GmbH !
Die ReWa Immobilien GmbH ist Mitglied im IVD (Immobilien Verband Deutschland) und Ihr IVD-Markt-Experte in Radolfzell, Konstanz, Singen, Überlingen, Stockach und Umgebung. Alle Informationen beruhen auf Angaben des Verkäufers/Vermieters. Für die Richtigkeit werden keine Gewähr und Haftung übernommen. Bitte nennen Sie uns bei Anfragen Ihre vollständigen Kontaktdaten mit Adresse und Telefonnummer, da wir vom Eigentümer beauftragt sind, keine Informationen anonym zu versenden.
Ansprechpartner
Telefax: 004977328927019
Mobil: 00491715315428
anfragen@rewa-immobilien.org
Energieausweis (Verbrauchsausweis)
15,37 kWh / (m²*a) Energieverbrauchskennwert
15,37 kWh / (m²*a) Energieverbrauchskennwert
15,37 kWh / (m²*a) Energieverbrauchskennwert
Weitere Informationen
| Wesentlicher Energieträger | Luft-/Wasser-Wärmepumpe |
| Energieausweis gültig bis | 2027-03-13 |
| Energieausweis Jahrgang | ab dem 1.5.2014 |
| Energieausweis Werteklasse | A |
| Energieausweis Baujahr | 2017 |
| Energieausweis Gebäudeart | Wohngebäude |
| Heizung | Fußbodenheizung |
| Befeuerung | Luft-/Wasser-Wärmepumpe |

